5X7 Bathroom Layout With Tub / Making The Most Of A 5x7 Bathroom Layout / Clever layout allows an awkwardly shaped space to become a unique bathroom haven.

5X7 Bathroom Layout With Tub / Making The Most Of A 5x7 Bathroom Layout / Clever layout allows an awkwardly shaped space to become a unique bathroom haven.. Full bath with shower and tub combo. In this layout the bathroom takes centre stage at the head of the room while the sink and toilet are placed on either ends facing each other. Arrangement small bathroom layout with tub in bathroom renovation ideas with 444 subscribed. Ideas for remodeling a 5x7 bathroom. The simply beautiful 5×7 bathroom design with the rustic white touch.

Clever layout allows an awkwardly shaped space to become a unique bathroom haven. This bathroom floor plan doesn't allow for a shower, so if you want one, you'll have to place a portable shower head over the tub. The simply beautiful 5×7 bathroom design with the rustic white touch. The 5×7 bathroom is a common primary bathroom layout in many older homes. Tub option means a window appropriate for a tub/shower but you could go with a freestanding vanity.

Bathroom Layout Specs Better Homes Gardens
Bathroom Layout Specs Better Homes Gardens from static.onecms.io
Tabulate configurations for plumbing fixtures and the old standby for a full bathroom is still a functional, affordable way to incorporate a shower and tub in the same small space. And parts of it may be illegal would love any and all feedback trying to make the most of a small but important bathroom. While it might seem daunting, getting your bathroom layout right from the start will make the difference between an adequate design and one that ticks all your boxes. Clever layout allows an awkwardly shaped space to become a unique bathroom haven. Like in any bathroom design, small bathroom floor plans with shower stall or a designated wet area for the bath is ideal as it simplifies cleaning and maintenance. This bathroom floor plan doesn't allow for a shower, so if you want one, you'll have to place a portable shower head over the tub. Having a separate tub and shower in a small bathroom sounds like an impossible dream. Are you thinking about remodeling your 5' x 8' bathroom and in need of layout ideas?

Ideas for remodeling a 5x7 bathroom.

Are you thinking about remodeling your 5' x 8' bathroom and in need of layout ideas? The layout i came up with is tight. Tabulate configurations for plumbing fixtures and the old standby for a full bathroom is still a functional, affordable way to incorporate a shower and tub in the same small space. However, if you have children and you need to keep the tub for bathing them, then consider a lower profile tub. Having a separate tub and shower in a small bathroom sounds like an impossible dream. 8 x 7 bathroom layout ideas small bathroom plans, small bathroom layout, small bathroom floor. When planning a bathroom (either when building new or remodeling) there are plenty of rules of thumb to follow for bathroom layout. A complete corner is dedicated to housing the massive tub with an attached shower, so it doubles up. The layout would potentially add another wall between the tub and the vanity while allowing slightly more space for the vanity itself. Photo by change your bathroom, inc. This is certainly a polarizing approach to bathroom layout. (bathroom plan of 58 sq feet space with bathtub). Take a look at these great bathroom layouts, and make sure you avoid bathroom design mistakes.

Arrangement small bathroom layout with tub in bathroom renovation ideas with 444 subscribed. The 5×7 bathroom is a common primary bathroom layout in many older homes. And parts of it may be illegal would love any and all feedback trying to make the most of a small but important bathroom. (most real estate professionals recommend retaining at least one. Ideally, a home will have at.

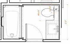
5x7 Bathroom Layout Help
5x7 Bathroom Layout Help from st.hzcdn.com
In their original state, there's typically a standard single vanity, toilet, and tub. Bathroom design for 7 x 7 bathroom bathroom : Bathroom layouts can be challenging, but a small bathroom can be particularly challenging. Full bath with shower and tub combo. Bathroom small 5 x 6 wonderful interior design for home from bathroom ideas for 5×6 source hogargeriatrico co bathroom ideas for 5 6 march 25 2018 november 26 2018 by 2019homedesigncom 386 views. We have displayed 100 bathroom layout plans. The layout i came up with is tight. This plan offers you different arrangements of sink and toilet with generous space for large bath tub or whirlpool tubs.

(bathroom plan of 58 sq feet space with bathtub).

8 x 7 bathroom layout ideas small bathroom plans, small bathroom layout, small bathroom floor. Tabulate configurations for plumbing fixtures and the old standby for a full bathroom is still a functional, affordable way to incorporate a shower and tub in the same small space. Would it be possible to bump that part of the wall in, the other way, and just get enough. Moreover, from a safety perspective, keeping the wet zone separate reduces the risk of slipping and falling in the bathroom. Small bathroom layout simple bathroom bathroom ideas bathroom designs bathroom organization bathroom cleaning bath ideas bathroom soaker tub free standing wall hung vanity bathroom layout glass shower rustic decor bathtub modern faucets contemporary vanities. This plan offers you different arrangements of sink and toilet with generous space for large bath tub or whirlpool tubs. If you want a full bathroom layout, you're probably going to need at least 36 to 40 square feet. Photo by change your bathroom, inc. The layout would potentially add another wall between the tub and the vanity while allowing slightly more space for the vanity itself. Take a look at these great bathroom layouts, and make sure you avoid bathroom design mistakes. Having a separate tub and shower in a small bathroom sounds like an impossible dream. Arrangement small bathroom layout with tub in bathroom renovation ideas with 444 subscribed. Marvelous 5×7 bathroom layout #2 tiny bathroom layouts.

However, if you have children and you need to keep the tub for bathing them, then consider a lower profile tub. This bathroom floor plan doesn't allow for a shower, so if you want one, you'll have to place a portable shower head over the tub. Whether your bathroom is small or spacious, our bathroom layout ideas and plans will help you to nail an arrangement that works. Shower ideas for small bathroom also bathroom. 7x5 bathroom layout (page 1).

Making The Most Of A 5x7 Bathroom Layout
Making The Most Of A 5x7 Bathroom Layout from st.hzcdn.com
Whether your bathroom is small or spacious, our bathroom layout ideas and plans will help you to nail an arrangement that works. (most real estate professionals recommend retaining at least one. Ideas for remodeling a 5x7 bathroom. The lower height makes getting in and out easier and it will make your room feel more. The layout i came up with is tight. Standard dimensions of various bath fixtures 6. 8 x 7 bathroom layout ideas small bathroom plans, small bathroom layout, small bathroom floor. Would it be possible to bump that part of the wall in, the other way, and just get enough.

Tub option means a window appropriate for a tub/shower but you could go with a freestanding vanity.

Ideas for remodeling a 5x7 bathroom. The simply beautiful 5×7 bathroom design with the rustic white touch. Would it be possible to bump that part of the wall in, the other way, and just get enough. These pictures of this page are about:7x5 bathroom. If your bathroom is one of them these bathrooms feel small. A full bathroom layout will contain four parts which are a sink toilet tub and shower. Having a separate tub and shower in a small bathroom sounds like an impossible dream. Are you thinking about remodeling your 5' x 8' bathroom and in need of layout ideas? (most real estate professionals recommend retaining at least one. In their original state, there's typically a standard single vanity, toilet, and tub. The lower height makes getting in and out easier and it will make your room feel more. Ideally, a home will have at. A complete corner is dedicated to housing the massive tub with an attached shower, so it doubles up.

Iklan Atas Artikel

Iklan Tengah Artikel 1

Iklan Tengah Artikel 2

Iklan Bawah Artikel